Skip to main content

.

projekcie

Dovoľte mi predstaviť výrez z portfólia projektov, na ktorých spoločne so mnou spolupracovalo veľa odborne zdatných kolegov. Často to boli chvíle hľadania možností ako nové myšlienky technicky uchopiť a zrealizovať. Pretože strach z nepoznaného a nevyskúšaného, pripútanosť na staré osvedčené, vnímam ako jednu s najväčších bariér a myšlienkových konštruktov aké môže naša myseľ nášmu tvorivému duchu stanoviť.. Ďakujem za váš čas a pozornosť.

Ďakujeme všetkým našim klientom za dôveru, ktorú v náš Húština ateliér vložili. Často to bolo o vzájomnej trpezlivosti a pochopení všetkých súvislostí. Tešíme sa na spoluprácu s každým komu je naša tvorba bízka..

Ateliér Húština
Projekcia

Projekt záhradnej a krajinnej architektúry

Projekt záhradnej a krajinnej architektúry pre exteriér novostavieb objektov Rodinných domov Banský Studenec
Projekcia

Projekt záhradnej a krajinnej architektúry

Projekt záhradnej a krajinnej architektúry pre exteriér novostavieb objektov Rodinných domov Banský Studenec

OBJEKT: SÚKROMNÁ ZÁHRADA RODINNÝCH DOMOV
MIESTO STAVBY: BANSKÝ STUDENEC, parc. č. 594, 587/1
STUPEŇ PROJEKTOVEJ DOKUMENTÁCIE: Štúdia v stupni DSP
INVESTOR: Tomáš Pagáč s rod.
AUTOR: HÚŠTINA ATELIÉR
ZODPOVEDNÝ PROJEKTANT: Ing. arch. Jakub Kolarovič
VYPRACOVAL: Ing. M. Húšťavová, František Golčiter
SPOLUPRÁCA: Roman Kaločay, Bc. Adelina Belinska, Bc.Klaudia Dočekalová
DÁTUM SPRACOVANIA PD: 10/2021 - 01/2022

Projekt záhradnej a krajinnej architektúry pre exteriér novostavieb objektov Rodinných domov Banský Studenec
Ateliér Húština

Projekcia

Sadovnícke úpravy výrobného areálu

Novostavba objektu AB3 a stavebné úpravy objektu Výrobná hala 3 - MTS Krivá

Projekcia

Sadovnícke úpravy výrobného areálu

Novostavba objektu AB3 a stavebné úpravy objektu Výrobná hala 3 - MTS Krivá

OBJEKT: NOVOSTAVBA OBJEKTU AB3 MTS KRIVÁ
MIESTO STAVBY: KRIVÁ, parc. č. 4207, 4178/1, 4180, 4178/7, 4263/8
STUPEŇ PROJEKTOVEJ DOKUMENTÁCIE: štúdia v stupni DSP
INVESTOR: MTS, spol. s.r.o. KRIVÁ 53, 027 55
AUTOR: HÚŠTINA ATELIÉR
ZODPOVEDNÝ PROJEKTANT: Ing. M. Húšťavová
VYPRACOVAL: Ing. M. Húšťavová, Ing. Veronika Bagarová
SPOLUPRÁCA: Ing.arch.Richard Koseček, Ing.arch.Ján Jacko, Ing.arch.Ján Kuva
DÁTUM SPRACOVANIA PD: 04 - 08/2021

Projekt časti výrobného areálu MTS Krivá v sebe nesie myšlienku navrátenia prírody do územia po výstavbe. Koncept bol vytváraný s ohľadom na potreby klientov, pracovníkov či rodinných príslušníkov. V súlade s okolitou prírodou bolo navrhnuté spoločenstvo rastlín od najnižšej trvalkovej etáže, po najvyššiu stromovú etáž. organickosť tvarov sa odráža od zvlnenej morfológie okolitého terénu.
Ateliér Húština

Projekcia

Interiérová zeleň

Novostavba objektu AB3 a stavebné úpravy objektu Výrobná hala 3 - MTS Krivá

Projekcia

Interiérová zeleň

Novostavba objektu AB3 a stavebné úpravy objektu Výrobná hala 3 - MTS Krivá

OBJEKT: NOVOSTAVBA OBJEKTU AB3 MTS KRIVÁ
MIESTO STAVBY: KRIVÁ, parc. č. 4207, 4178/1, 4180, 4178/7, 4263/8
STUPEŇ PROJEKTOVEJ DOKUMENTÁCIE: štúdia v stupni DSP
INVESTOR: MTS, spol. s.r.o. KRIVÁ 53, 027 55
AUTOR: HÚŠTINA ATELIÉR
ZODPOVEDNÝ PROJEKTANT: Ing. M. Húšťavová
VYPRACOVAL: Ing. M. Húšťavová, Ing. Veronika Bagarová
SPOLUPRÁCA: Ing.arch.Richard Koseček, Ing.arch.Ján Jacko, Ing.arch.Ján Kuva
DÁTUM SPRACOVANIA PD: 04 - 08/2021

Projekt interiérovej zelene sme vytvárali s ohľadom na pocity a vnemy projektantov ktorí budú v interiéri budovy tráviť celý svoj pracovný čas. zeleň v interiérovom prostredí vytvára pocity harmónie a prirodzene dopĺňa prvky nábytku. interiérové kvetináče od firmy Lechruza vo verzii Havalo štýlovo doplnili navrhovaný koncept interiéru.

Ateliér Húština

Projekcia

Projekt rodinnej záhrady Rakúsko

Projekcia

Projekt rodinnej záhrady Rakúsko

OBJEKT: RODINNÁ ZÁHRADA
MIESTO STAVBY: MARIA ELLEND RAKÚSKO
STUPEŇ PROJEKTOVEJ DOKUMENTÁCIE: RP
INVESTOR: Rod. Pokorná
AUTOR: HÚŠTINA ATELIÉR
ZODPOVEDNÝ PROJEKTANT: Ing. Miriam Húšťavová
VYPRACOVAL: Ing. M. Húšťavová, Ing. Veronika Bagarová
SPOLUPRÁCA: Ateliér Divoko s.r.o.
DÁTUM SPRACOVANIA PD: 03 - 06/2021
Dátum realizácie 10/2021 - 2022

Ateliér Húština

Projekcia

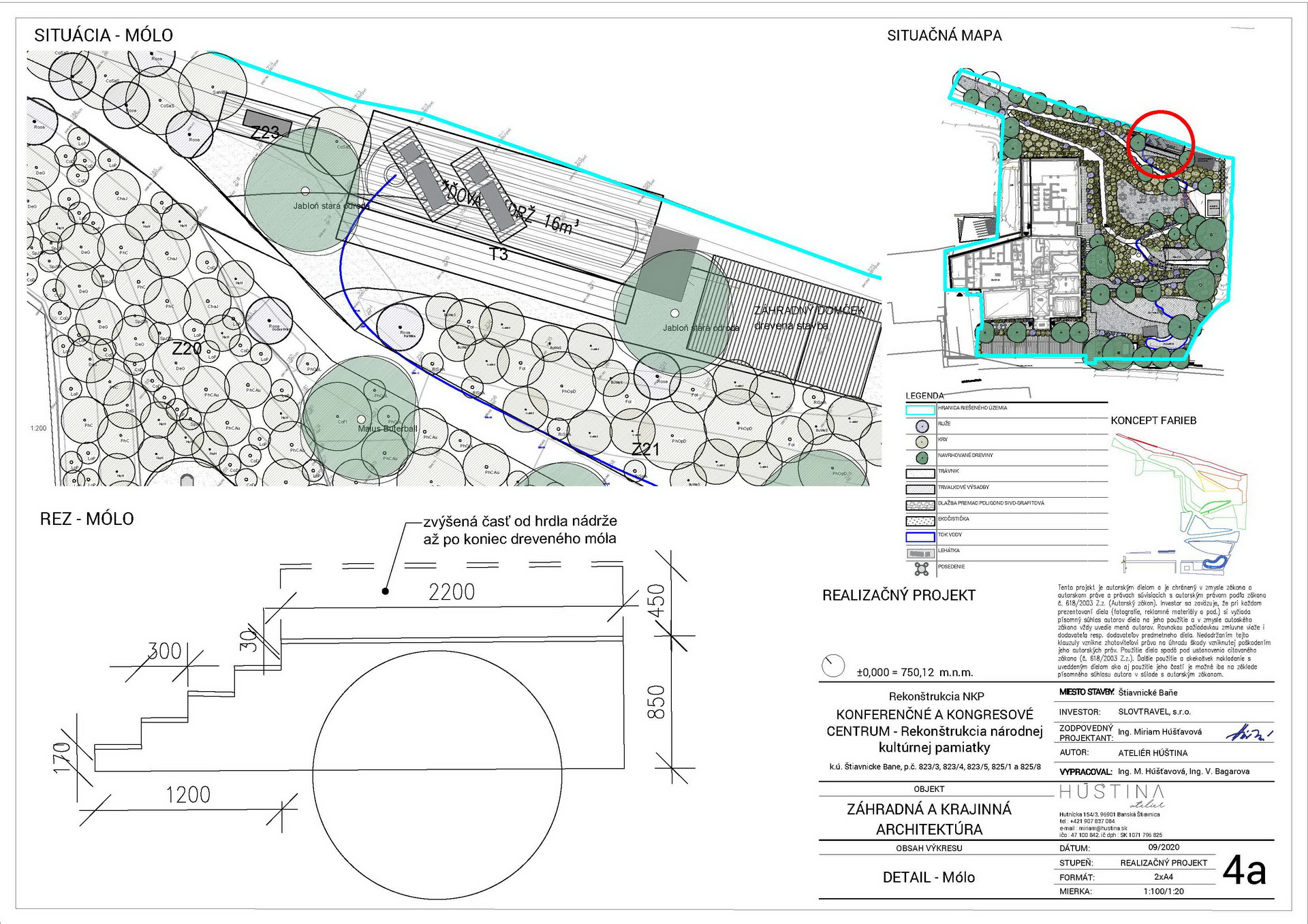
Rekonštrukcia NKP a jej zelene

Hotel Sieglisberg Štiavnické Bane

Projekcia

Rekonštrukcia NKP a jej zelene

Hotel Sieglisberg Štiavnické Bane

OBJEKT: KONFERENČNÉ A KONGRESOVÉ CENTRUM - budova NKP
MIESTO STAVBY: ŠTIAVNICKÉ BANE, parc. č. 823/3, 823/4, 823/5, 825/1 a 825/8
STUPEŇ PROJEKTOVEJ DOKUMENTÁCIE: RP
INVESTOR: Slovtravel, s.r.o.
AUTOR: HÚŠTINA a DIVOKO ATELIÉR
ZODPOVEDNÝ PROJEKTANT: Ing. Miriam Húšťavová
VYPRACOVAL: Ing. M. Húšťavová, Ing. Veronika Bagarová
SPOLUPRÁCA: Ing.arch Zuzana Foltánová, Norbert Píš
DÁTUM SPRACOVANIA PD: 09/2019 - 09/2020
DÁTUM REALIZÁCIE: 10/2019 - 04/2020

Keď svahovitost pomenujeme ako výhodu, ktorá poskytuje nadhľad nad všetkým, prináša nové výhľady do krajiny, iné pohľady na “kúty” záhrady. Projekčne aj riešeniami náročnejší svahovitý terén, no vďaka odhodlaniu všetkých a navrhnutiu “tendenčnosti” sa vymykajúcich riešení sa podarilo vytvoriť pekný pobytový priestor pre hostí hotela a reštaurácie.

Ateliér Húština